
Over the past few months, we’ve enjoyed working with a new client on a new home build in Orange County. New construction is a much different animal compared to home renovations. We’ve completed a few new home construction projects over the years, and this one, like all projects of this magnitude, came with several challenges.
Many may assume that building in rural areas may be simpler regarding zoning and local municipalities. With this new build, we found this not to be the case. For this project, we were working on a project where family land was involved. This family land just happened to be in the protected Eno River watershed, which created many challenges.
Because a local watershed protected the property, only a certain percentage of the lot could be built on, which needed to include any impervious surfaces (house, deck, paved, or gravel driveway). This forced us to be very creative, using a unique geotextile fabric and a particular type of stone that was not considered to be impervious. In the end, we were able to meet the client’s needs in terms of the size of the house and all of the necessary restrictions based on the location.
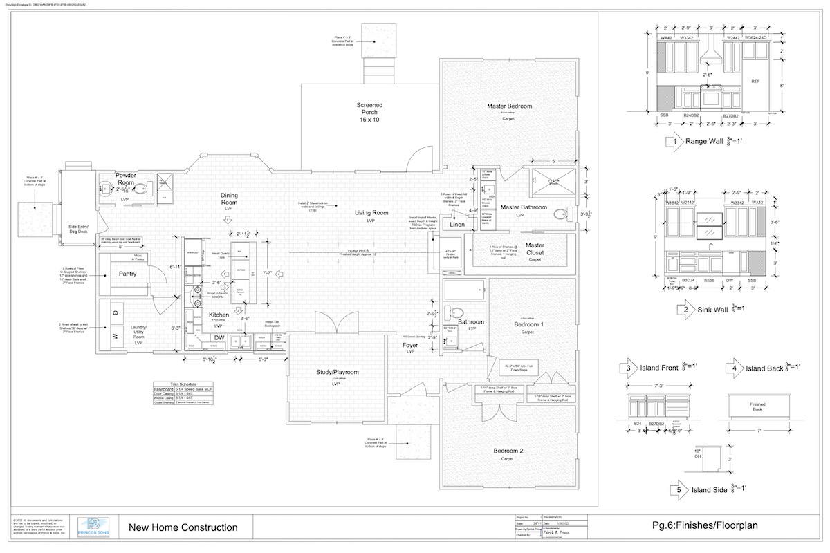
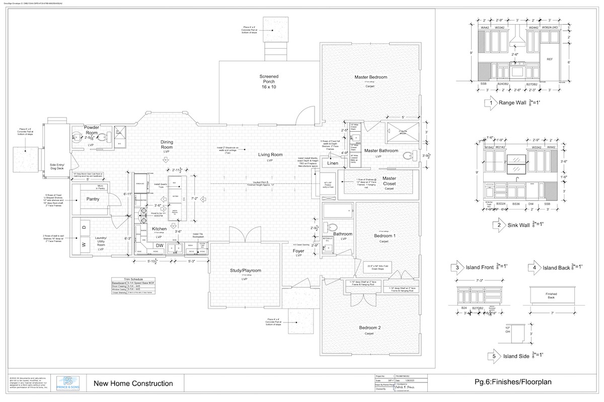
Below are interior and exterior views of our plans for this project. Feel free to click on each image for an expanded view.
Over the past few years, we’ve worked extremely hard to constrain rising construction costs as much as possible. This is especially key with new construction projects. We knew early on that our client had a set budget, so we worked to choose finishes and decrease material waste to help stay within budget.
Because we designed this home from the ground up, thanks to our in-house draftsman, we were able to utilize a few different technological advancements that sped up the building process. A few of these included:
Below are some additional pictures from the early phases of this project. Feel free to click on each image for an expanded view.
While this new home in Hillsborough is not quite complete, we’re eager to show off some finished pictures once it is done. This project has been unique, and we think it is an excellent example of how you can build a new home in today’s construction climate while still sticking to a budget. If you’re interested in new construction, don’t hesitate to contact the Prince & Sons team today by phone at 919-383-0888.